
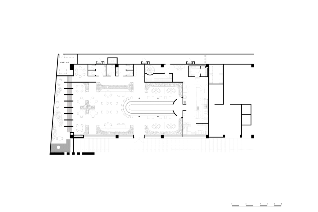
RAÍCES
Mérida, Yucatán, México

Restaurante
2025
426m2
Raíces es un espacio experimental de cocina mexicana contemporánea donde pasado y presente se fusionan en un ecosistema arquitectónico de minimalismo mesoamericano, integrando producto, espacio, persona y sentimiento en una experiencia gastronómica profundamente arraigada en su origen cultural



INTERIOR

BARRA, INTERIOR

INTERIOR

TERRAZA

INTERIOR

PLANOS






